アドバンス京都リエートⅡ
近鉄京都線「東寺」駅徒歩6分
利便性に優れ、躍動的な都市生活を謳歌する。
Where you feel precious.
古くは平安京の南部に位置することから「洛南」と呼ばれる地。
唯一残る平安京の遺構「東寺」など重要な観光資源を有し、商業施設、企業、学校や病院などが多数立地。
アクセス性の高い地域のポテンシャルを活かし、生活利便が整った快適な環境づくりが進む東寺エリアは、美しい環境が保たれ、暮らしと賑わいが見事に調和しています。
近鉄京都線「東寺」駅徒歩6分
利便性に優れ、躍動的な都市生活を謳歌する。
Where you feel precious.
古くは平安京の南部に位置することから「洛南」と呼ばれる地。
唯一残る平安京の遺構「東寺」など重要な観光資源を有し、商業施設、企業、学校や病院などが多数立地。
アクセス性の高い地域のポテンシャルを活かし、生活利便が整った快適な環境づくりが進む東寺エリアは、美しい環境が保たれ、暮らしと賑わいが見事に調和しています。
| 名称 | アドバンス京都リエートⅡ |
|---|---|
| 所在地 | 京都市南区東九条西山町20番1 |
| 交通 | 近鉄京都線「東寺」駅徒歩6分 |
| 地域/地区 | 市街化区域、第二種住居地域、準防火地域、20m第2種高度地区、町並み型建造物修景地区、遠景デザイン保全区域、宅地造成等工事規制区域、居住誘導区域、既成都市区域 |
| 地目 | 宅地 |
| 建ペイ率 | 55.88% |
| 容積率 | 199.72% |
| 敷地面積 | 725.43m² |
| 建築面積 | 405.36m² |
| 建築延床面積 | 1,715.48㎡ / 容積対象面積 1,448.81m² |
| 構造/規模 | 鉄筋コンクリート造・地上5階建 |
| 総戸数 | 49戸 |
| 販売戸数 | 49戸 |
| 建築確認番号 | 第R06確認建築IPEC00851号(令和7年3月31日) |
| 私道負担 | なし |
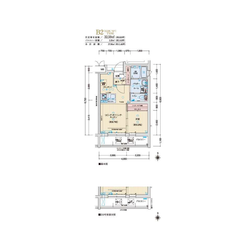
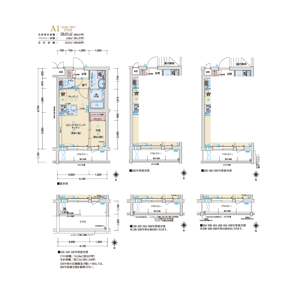
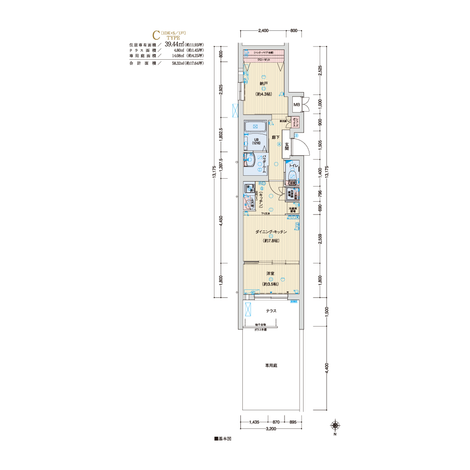
| 間取り | 1LDK、1DK+S |
| 住居専有面積 | 28.01㎡~39.44㎡ |
| バルコニー面積 | 4.56㎡・5.39㎡ |
| 面積その他 | テラス面積:4.80㎡・10.16㎡、専用庭面積:14.08㎡ |
| 駐車場 | 2台(来客用1台・サービス用1台) |
| バイク置場 | 20台 |
| 自転車置場 | 53台 |
| 分譲後の権利形態 | 敷地及び建物共用部分・付属施設は専有面積持分比率による共有、建物専有部分は区分所有 |
| 管理形態 | 区分所有者全員にて管理組合を設立し、管理組合より管理受託者へ委託 |
| 竣工予定 | 2026年1月上旬(予定) |
| 入居予定 | 2026年2月上旬(予定) |
| 事業主(売主) | 株式会社日成アドバンス |
| 設計/監理 | 株式会社A-Studio一級建築士事務所 |
| 施工 | 株式会社公建 |
| 管理会社 | グローバルコミュニティ株式会社 |
| 設計図書閲覧場所 | 「アドバンス京都リエートⅡ」管理室 |