Advance 西梅田 Ⅳ ailes
千日前线“玉川”站步行6分钟
千日前线“玉川”站步行6分钟
| 名稱 | Advance 西梅田 Ⅳ ailes |
|---|---|
| 所在地 | 大阪市福岛区玉川3-4-15 |
| 交通 | 千日前线“玉川”站步行6分钟 |
| 地域/地區 | (日本) 商業地域/第2種住居地域、防火/準防火地域 |
| 地類 | 住宅用地 |
| 建蔽率 | 68.39% |
| 容積率 | 589.62% |
| 占地面積 | 399.8m² |
| 建築面積 | 273.39m² |
| 建築延床面積 | 2928.83m² |
| 構造/規模 | 钢筋混凝土结构、地上12层、地下1层建筑 |
| 總戶數 | 78戶 |
| 銷售戶數 | 78戶 |
| 建築確認號碼 | 第H2300420号(平成23年5月12日) |
| 其他號碼 | (日本) 計画変更確認番号:第H23確認建築防大00095号(平成23年9月29日) |
| 私道負擔 | 无 |
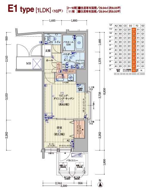
| 格局 | 1K~1LDK |
| 居住專有面積 | 23.40m2~44.51m2 |
| 陽臺面積 | 2.74m2~9.73m2 |
| 其他面積 | ルーフバルコニー面積:12.56m2~19.80m2/アルコーブ面積:0.54m2~2.58m2/テラス面積:5.90m2~7.80m2/専用庭面積:6.23m2/12.58m2 |
| 摩托車停車場 | 3 |
| 小型摩托車停車場 | 6 |
| 自行車停車場 | 55 |
| 分售後的權利形態 | 私有部分:区分所有权 公共部分:根据所有业 / 主私有部分的建筑面积比例进行分配,共享所有权 |
| 管理形態 | 由全体业主共同设立管理委员会,并将之委托给管理公司管理 |
| 竣工預定 | 2012年6月下旬 |
| 入住預定 | 2012年7月下旬 |
| 事業主(賣主) | 日成Advance |
| 設計/監理 | Fukushima Yoichi Building Research Institute, Idea planning |
| 施工 | Sunada construction |
| 管理公司 | Global community Inc. / Advanced Management Inc. |
| 設計圖紙閱覽場所 | Advance Nishi-Umeda Ⅳ ailes |